10 Usability Heuristics Applied to Complex Applications應用於複雜應用的10條可用性啟發式原則
Jakob Nielsen 的 10 條使用者介面設計可用性啟發式原則自 1994 年推出以來,一直為指導設計決策提供廣泛的經驗法則。這些原則適用於各種互動設計,包括支援特定領域複雜工作流程的企業應用、資料分析工具和高價值決策支援系統。本文結合複雜應用場景,探討每條原則的應用與示例。
1. 系統狀態的可見性 (Visibility of System Status)
系統應透過適當反饋讓使用者瞭解當前狀態,並在合理時間內響應使用者的操作。
複雜應用場景:長時間等待是複雜應用的常見情況,此時單一的載入動畫不足以提供支援。


2. 系統與真實世界的一致性 (Match Between System and the Real World)
設計應使用使用者熟悉的語言、概念和邏輯順序,避免內部術語。
複雜應用場景:使用者依賴現實世界的比喻完成任務。違背這些比喻會導致混亂。
反例:某呼叫中心管理軟體用咖啡杯圖示表示“可接聽狀態”,與文化慣例(咖啡休息)矛盾,導致誤解。

改進建議:採用符合使用者認知的符號和語言,減少學習負擔。
3. 使用者控制與自由 (User Control and Freedom)
為使用者提供清晰的“緊急出口”,允許撤銷或取消不需要的操作。
複雜應用場景:複雜任務通常涉及高認知投入,使用者需要快速糾錯的選項。
優秀示例:Jitterbit Cloud Studio 提供專案歷史時間線,使用者可檢視更改記錄並恢復早期版本。
改進建議:支援撤銷、取消和返回功能,防止使用者因誤操作而喪失進度。

4. 一致性與標準化 (Consistency and Standards)
在產品內部和行業標準之間保持一致,減少使用者對設計意圖的猜測。
複雜應用場景:內部一致性增強學習效果,外部一致性與使用者的普遍認知對齊。
優秀示例:Microsoft Power BI 在所有工作區使用統一的“+”號表示新增新元素。

反例:某 DevOps 管理軟體在同一介面中使用“+”號既表示“新增新任務”,又表示“展開詳情”,導致混淆。
改進建議:統一互動元件的視覺設計與語義,遵循行業慣例。

5. 錯誤預防 (Error Prevention)
設計應避免使用者犯錯,或在操作前進行檢查並提供確認選項。
複雜應用場景:使用者往往在學習階段容易出錯,系統應支援探索性操作並減少錯誤。
優秀示例:Salesforce 在構建儀錶板時實時預覽元件,幫助使用者理解更改效果並快速糾正。
改進建議:透過實時反饋和視覺化,幫助使用者理解操作的影響。

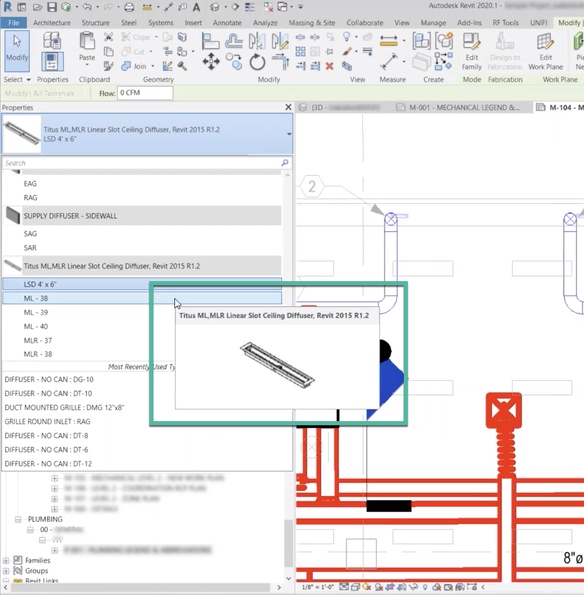
6. 識別優於回憶 (Recognition Rather than Recall)
減少使用者記憶負擔,透過可見元素幫助使用者識別資訊。
複雜應用場景:複雜應用通常包含大量資料和選項,易增加使用者的認知負擔。
優秀示例:Revit 在使用者懸停部件編號時顯示 3D 圖示和詳細名稱,幫助使用者識別部件而非回憶編號含義。
改進建議:透過工具提示或視覺提示加強識別能力,減少記憶需求。

7. 靈活性與效率 (Flexibility and Efficiency of Use)
透過快捷方式支援專家使用者,同時為新手提供清晰的操作路徑。
複雜應用場景:效率對於高頻使用者至關重要,快捷方式能幫助突破效率瓶頸。
優秀示例:Solidworks 提供滑鼠手勢快捷方式,使用者可自定義以適應工作流。
改進建議:提供隱藏的快捷鍵、手勢或宏操作,兼顧新手與專家使用者。

8. 美觀與簡約設計 (Aesthetic and Minimalist Design)
介面應僅包含使用者需要的資訊,避免不必要的視覺元素。
複雜應用場景:複雜介面中資訊過載是常見問題,非關鍵元素會加重使用者的認知負擔。
優秀示例:Mastercard Test and Learn 使用動態顯示,僅在相關欄位被選中後顯示高階設定。

反例:某專案管理軟體對任務列表中的每一項新增相同圖示,既浪費空間又增加視覺幹擾。
改進建議:剔除冗餘元素,透過逐步顯示動態內容最佳化介面。

9. 幫助使用者識別、診斷和恢復錯誤 (Help Users Recognize, Diagnose, and Recover from Errors)
錯誤資訊應清晰易懂,明確問題並提供解決方案。
複雜應用場景:複雜系統中,使用者常因錯誤資訊不足而陷入困境。
優秀示例:Jitterbit Cloud Studio 在錯誤資訊中包含詳細檔案連結,指導使用者解決問題。

反例:某 ERP 系統顯示“無法顯示資料,請聯絡系統管理員”,未提供任何解決方案。
改進建議:在錯誤提示中提供具體指導或連結至詳細幫助內容。

10. 幫助與檔案 (Help and Documentation)
即使無需額外說明的系統是理想狀態,複雜系統仍需要提供上下文幫助與檔案支援。
複雜應用場景:使用者通常不會提前閱讀檔案,實時的上下文幫助更有效。
優秀示例:Revit 在工具欄懸停時顯示簡要描述、快捷鍵及演示影片。提供嵌入式幫助和簡短說明,避免使用者依賴外部檔案。

Jakob Nielsen 的 10 條啟發式原則在複雜應用中同樣適用,能顯著提升可用性、可學性和使用者效率。結合領域特定指南,這些原則能幫助設計師更好地應對複雜介面設計中的挑戰,為使用者提供流暢、高效的體驗。